Collectif d’architectes de Figurr :
Un processus de fabrication non conventionnel. La maison se compose de cinq modules préfabriqués sur mesure, chacun d’une longueur d’environ 15 m (cinquante pieds), qui sont assemblés avant d’être livrés sur chantier. Le concept a permis une construction intérieure dans des conditions de travail optimales.
La conception modulaire est unique, créée selon des plans précis de l’architecte. L’isolation, les fenêtres et le plancher ont tous été assemblés avant l’expédition. Le transport des modules géants s’est révélé être un véritable défi. Le processus comprenait la préparation, la coordination et la navigation sur les routes de campagne avec des virages à 90 degrés par mauvais temps.
La construction a commencé à la fin de l’été avant la démolition de la maison existante. Cela a permis d’accélérer la construction afin que la famille ne perde pas plus d’une saison à profiter du pays.
Table of Contents
Une faible empreinte écologique
Conçue dans l’optique de créer une empreinte écologique extrêmement faible, la maison a été construite avec des matériaux durables et locaux. Les grandes fenêtres captent la beauté de la nature dans toute sa splendeur et inondent l’intérieur de lumière. L’ensoleillement direct contribue à réduire les coûts de chauffage et d’éclairage.

La façade extérieure de couleur naturelle se fond facilement dans le décor de la forêt et les accents noirs opaques ajoutent une touche artistique. Le bois utilisé à l’intérieur est chaleureux et accueillant.
L’architecte est en train de demander une certification LEED Gold pour sa maison.

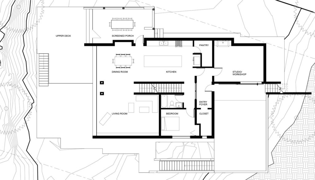
Un lieu adapté à tous
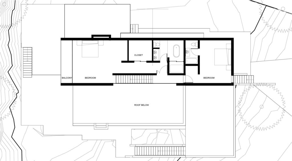
L’intérieur de la maison a été conçu de manière à ce que chaque membre de la famille ait son propre espace personnel.



Le concept ouvert du rez-de-chaussée comprend une grande cuisine et une salle à manger où tout le monde aime cuisiner et prendre de délicieux repas, un beau et confortable espace salon, et un porche trois saisons grillagé entouré de lac et de bois.

Le rez-de-chaussée dispose également d’un atelier de peinture et de menuiserie. La terrasse abaissée au bord du lac a été conçue de manière à ne pas perturber la vue sur le magnifique paysage.
Résumé
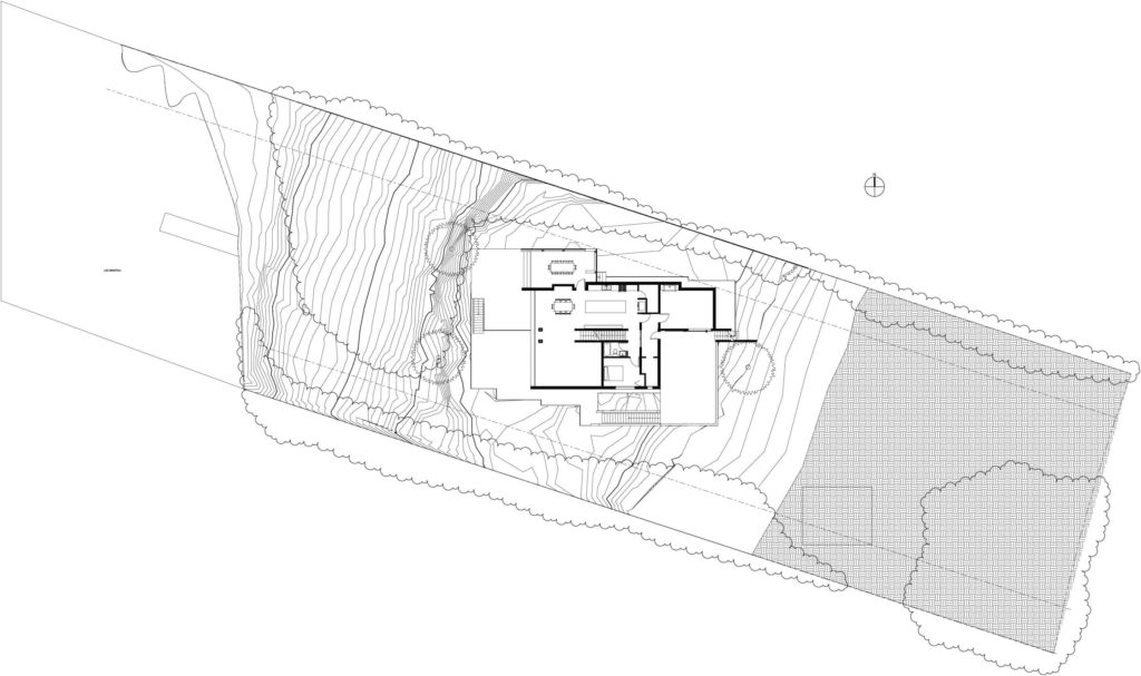
Suite à l’achat d’une humble maison de campagne il y a 25 ans, les propriétaires ont voulu s’offrir une nouvelle résidence secondaire où l’espace accueillerait confortablement tous les nouveaux membres de leur famille. Surplombant le lac Manitou à Ivry-sur-le-Lac, au Québec, la maison, conçue par l’architecte canadien Richard Rubin du collectif Figurr Architects, est composée de cinq modules construits en usine, chacun d’une longueur d’environ cinquante pieds, qui ont été construits avant d’être expédiés vers leur destination finale. Conçu dans le but de créer une empreinte environnementale extrêmement faible, l’architecte propriétaire est en train de demander une certification LEED Or pour sa maison.
Galerie d’images
Fiche technique
- Nom du projet : Maison de campagne préfabriquée certifiée LEED Or
- Cabinet d’architecture : Collectif d’architectes de Figurr
- Localisation : Ivry-sur-le-Lac, Québec, Canada
- Photographie : David Boyer
- Architecte principal : Richard Rubin et Stephen Rotman
- L’équipe de conception : Rick Rubin
- Collaborateurs : Énergéco Concept, Projet Paysage
- Surface bâtie : 390 m² (4200 ft²)
- Année d’achèvement : 2019
- Ingénieur en structure : Jeffrey Leibgott SBSA
- Outils utilisés : Adobe Photoshop, Adobe Lightroom
- Construction : Norexco
- Client : Privé
- Statut : Construit
- Typologie : Résidentiel ‘ Maison









